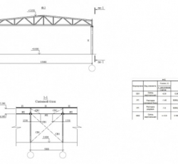
Однопролетные распорки и связи 4,5 метров

Описание
Справочные данные

Эти вертикальные профильные элементы обеспечивают продольную жесткость каркаса. Они устанавливаются по фермам и колоннам. Распорки размещают по всей длине сооружения, а связи – в конструкциях связевых блоков.

Стандарт: ДСТУ БВ.2.6-9:2008

Подробнее о точных параметрах профильного элемента можно узнать по тел. +38 (050) 453-41-49 или запросить данные при помощи e-mail profnastil@stalservis.ua. Мы быстро свяжемся с вами, чтобы предоставить интересующую информацию.