Профиль каркасный часто называют ЛСТК-профилем, поскольку его преимущественно используют для строительства легких стальных тонкостенных конструкций. Изготавливают его из качественной высокопрочной стали толщиной до 3 мм, которая подвергается специальной обработке (цинкованию) для повышения антикоррозийной защиты. Поэтому металл может эксплуатироваться в сложных погодных условиях, где велико влияние агрессивной окружающей среды.

Купить профиль для каркасов можно по выгодной стоимости, поскольку его производят из более тонкой стали в сравнении с другими строительными материалами. При монтаже он не требует сварочных и покрасочных работ, что уменьшает накладные расходы при возведении объектов. Кроме того, он легко и быстро собирается при помощи дополнительных крепежных элементов, поэтому здания из него строятся в кратчайшие сроки. А сочетание профиль/цена является важным дополнительным преимуществом этой продукции.
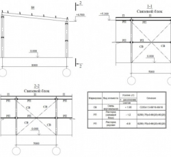
По форме изделия разделяют на Z, С, П-образные типы, по сфере применения – на профиль стеновой, профиль для перегородок, профиль стоечный, профиль потолочный. Также материал разграничивают на одно- двух- и многопролетные конструкции.
Однопролетные и двухпролетные каркасы являются наиболее популярными и универсальными. Ведь из них можно возвести здания самых разных габаритов и предназначения. В частности, такой профиль применяют для небольших сооружений – гаражей, киосков, торговых павильонов, автомоек и пр. В то же время с его помощью можно построить огромные самолетные ангары, различные склады, выставочные помещения, супер- и гипермаркеты. Для этого используют профиль разных размеров, но стандартные составляют 6 и 9 метров, а для однопролетных каркасов – еще и 4,5 метра.
Для реализации масштабных проектов, при которых несколько отдельных сооружений объединяются под одной кровлей, идеально подходит многопролетный стальной профиль длиной 6 или 9 метров. С его помощью возводят большие складские комплексы, сельскохозяйственные или производственные объекты. При этом полезная площадь используется максимально.

Еще к каркасным профилям относятся однопролетные связи и распорки, а также прогоны. Они необходимы для обеспечения поперечной и продольной жесткости конструкции. Благодаря правильному соединению всех элементов здание будет устойчиво, надежно и безопасно, а при необходимости его можно легко демонтировать.